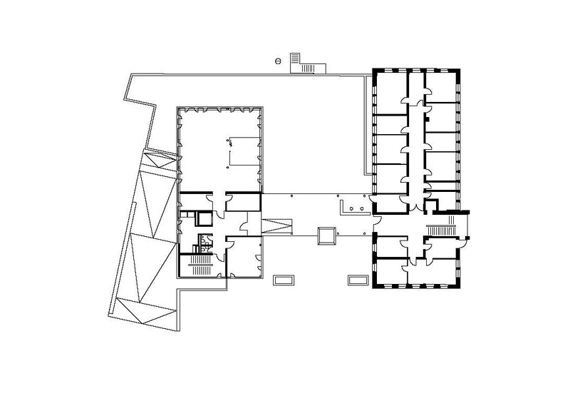
The head office of the Baden-Württemberg Guarantee Bank on the Werastrasse in Stuttgart consisted of three separate buildings – Buildings 13, 15 and 17. These are now to be linked via a central, open-plan and spacious entrance area between Buildings 13 and 15. The existing Building 13, which previously accommodated apartments and office space, has been replaced by a new building with an underground car park. Additional office space and a cafeteria has also been created. To enable office work to continue smoothly, the new building will be used exclusively for office use. The new transparently designed entrance area between Buildings 13 and 15 will also serve to connect the new and the existing buildings. The interplay with the glazed connecting walkway between Buildings 15 and 17 and a continuous roof area design throughout all three buildings gives rise to a distinctive ensemble of buildings. Some of the apartments that will disappear from Building 13 will be replaced by the roof storey extension in Building 17.