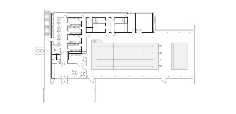
The site for the new pool is located on the northern outskirts of the city of Riedlingen, in the immediate vicinity of the school campus with a middle school and a grammar school. The indoor pool will be used primarily by schools and clubs with provision for additional use by the public. The building is set on a slope and towards the northeast it forms a two-storey construction. An exterior staircase leads the visitor from the car park straight to the upper main entrance. From the entrance area on the ground floor, ceiling-high glass façades allow a clear view into the swimming area, creating a dialogue between arriving visitors and swimmers. The ground floor is clearly structured and into four zones: entrance hall, changing rooms, connecting sanitary area and swimming hall. The swimming hall is glazed up to the ceiling on three sides, giving rise to a generous feeling of space. Wooden decking will be provided in front of the narrow side of the building to the southeast, allowing views across the neighbouring open spaces. With its uniform façade, the ground floor forms an eye-catching structure. The changing materials towards the basement and the overhung barefoot walkway give the ground floor a floating appearance.

Grundriss Erdgeschoss