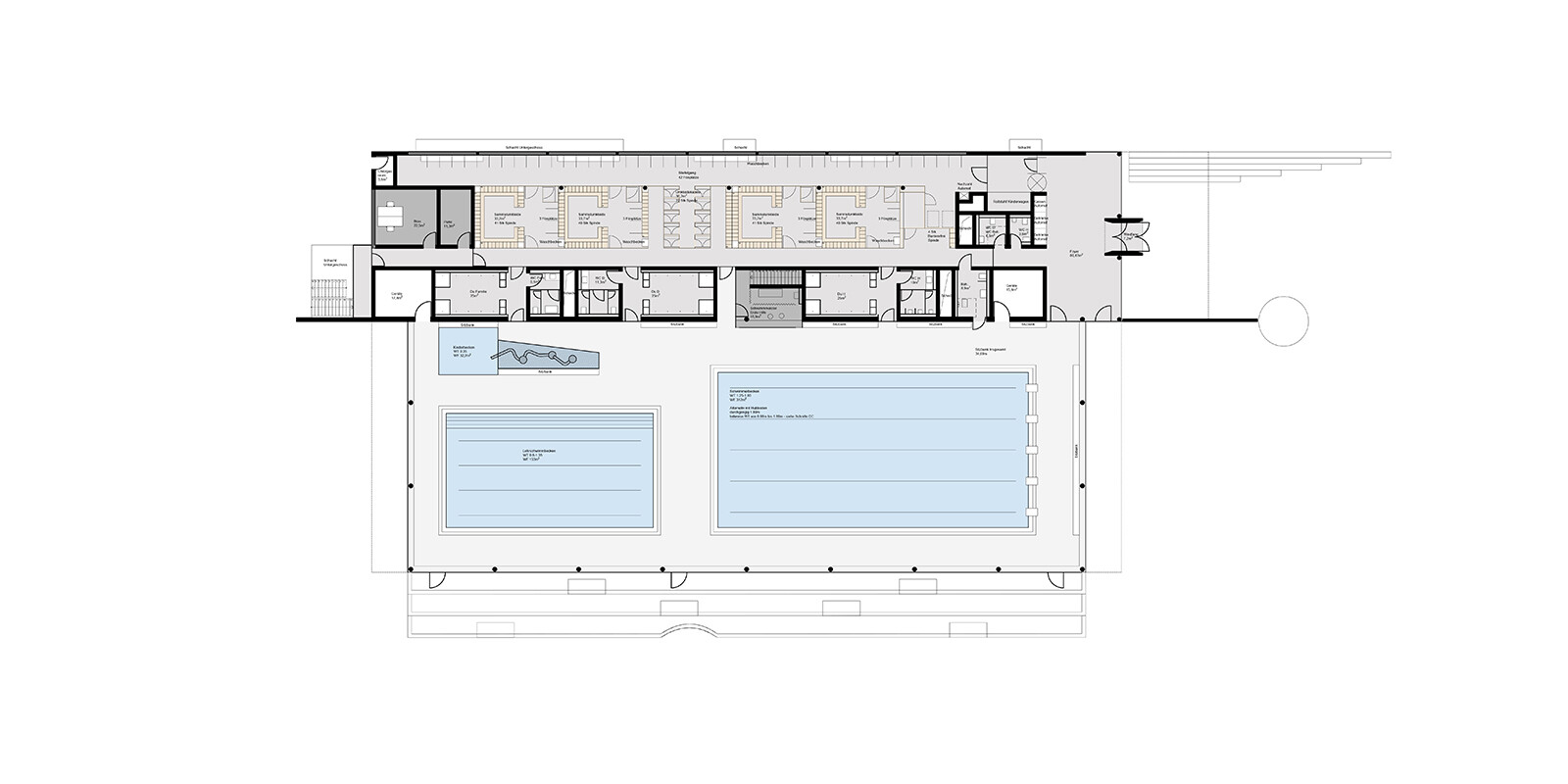
On the site of the existing outdoor swimming pool "Parkbad", a new indoor swimming pool building is planned to replace the aging swimming pool on Bismarkstraße. The new swimming pool will primarily be available for school and club sports as a triple exercise facility, but will also be open to the public. Formally, the building is divided into two parallel structures with different heights. The higher structure includes the indoor swimming pool with a 25-meter swimming pool, a teaching pool and a children's pool. The lower structure houses the foyer, the changing and shower areas, and all the ancillary rooms for the indoor swimming pool. The technical facilities are located in the basement.