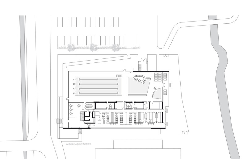
Plans for the new swimming pool focused on the construction of a high-quality building with a convincing design and a long service life. For this reason, the sustainability requirements of government-funded municipal building construction (NBBW subsidy programme) were applied to the development of the new building. The exterior of the compact building structure appears plain while the interior is infused with a vibrant, bright atmosphere that offers visitors maximum comfort. Architecturally, the Stutensee aquatic centre is divided into two spatial volumes which are clearly apparent from the outside. The spacious bathing hall comprises a swimmers’ pool, a learners’ pool with a slide and a toddlers’ area, all of which covers a total water surface of 368 m². A roofed terrace to the east further extends the facilities in the outdoor area. The adjoining entrance and changing area with shower and ancillary rooms to the south contrasts with the bathing hall due to its reduced ceiling height. The two structures interlock in terms of shape and materiality and merge together from the outside through a circumferential ribbon on the sheet steel façade.

The clear organisation of the floor plan of the bathing hall and changing area allowed a compact and economical construction method with a favourable surface area to volume ratio. This has allowed a reduction in not only construction costs but also running costs to be achieved. While the basement and first storey are executed in exposed concrete, it was possible for the supporting structure for the large-span bathing hall and the changing area to be constructed with a timber frame design. The suspended, acoustically efficient lamellar ceilings and wall panelling along with the perforated Aleppo pine ceiling in the changing wing are also executed in timber. Due to its numerous positive properties and natural appearance the material wood is exceptionally suited to lending atmosphere to spaces with reverberant surfaces such as bathing halls and optimising room acoustics. Moreover, the high degree of prefabrication of the timber elements provided for an economical method of construction and shorter construction times.

Awards
German Design Award 2020 - Winner
Beispielhaftes Bauen im Landkreis Karlsruhe 2013-2019
Iconic Awards 2019 - Winner
Deutscher Holzbaupreis 2019 - Engere Wahl
Heinze ArchitektenAWARD 2019 - Shortlist
DAM Preis 2019 - Nominierung

Ground floor