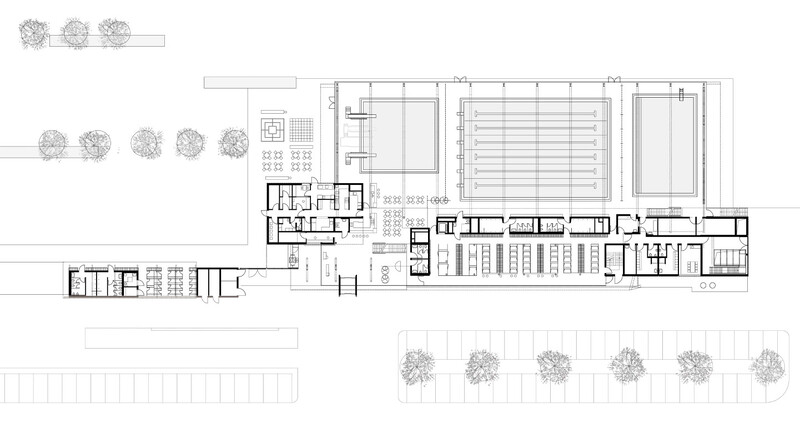
The expressive, dynamic construction of the indoor sports pool is integrated formally into the oblong-shaped plot while simultaneously corresponding with the various typologies of its surroundings: shear walls, a reduced supporting structure made from steel and timber, and generous glazing form a slim and permeable construction and anchor the indoor sports pool in its loosely built-up surroundings. The fresh colours in its interior create a friendly and lively atmosphere. The planning was focused not only on high-quality design but also on the use of an economical method of construction. The indoor sports pool was optimised with a view to ecological, economic and social aspects, on the one hand ensuring its lasting operation and, on the other hand, enabling a low budget to be kept to.

Ground floor