The Main Bad in Frankfurt-Bornheim is a forward-looking leisure and sports pool for families as well as school and club sports. The new building, located in the immediate vicinity of the ice rink, replaces the previous Panoramabad at Bornheimer Hang and impresses with its clear architecture, well-thought-out functionality, and high quality of stay.

4a Architekten has developed a three-story structure that makes optimal use of the available space and fits clearly into the urban context. Due to difficult ground conditions, a basement was not built – a rather unusual approach in terms of both design and functionality: the technical rooms are located on the ground floor, while the swimming hall with its generous glazing is located on the first floor. This location gives bathing guests an open view of the greenery and ensures a light-flooded bathing experience with panoramic views.

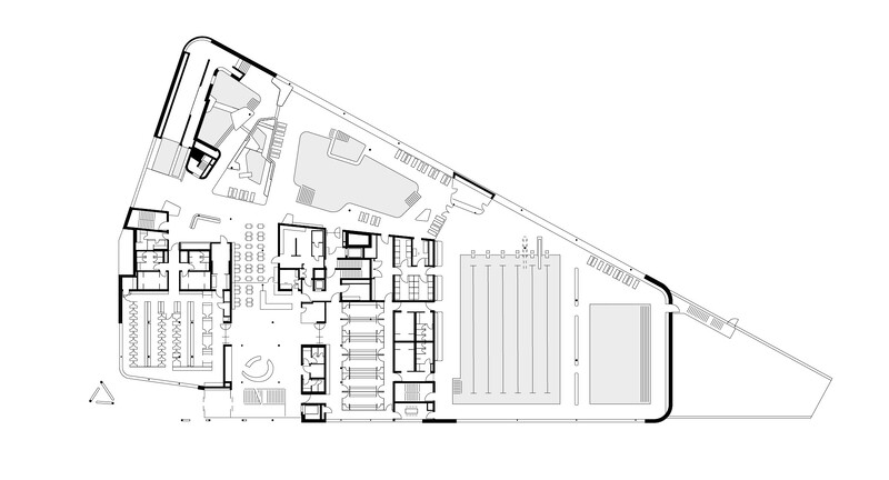
A variety of water worlds for all ages
The new Main Bad offers around 900 square meters of water space for leisure, sports, and recreation. The leisure pool hall offers numerous attractions: an adventure pool with a warm whirlpool, a toddler area with numerous attractions, and a spray park designed to resemble a jungle landscape, which invites children to play. A wide wave slide and an indoor tube slide provide additional bathing fun – the latter also with energy efficiency in mind, as an outdoor slide was not installed. Another highlight: when the sliding elements of the large glass façade are open, the outdoor space can be directly integrated into the swimming experience.

Minimalist, functional, clear – the sports area at Main Bad
The sports pool hall features a 25-meter pool with six lanes, a one-meter and three-meter diving platform, and a partially variable water depth – suitable for recreational swimmers, school classes, and club sports. A separate teaching pool completes the facilities. The design of the hall is reduced to the essentials: clear forms, a restrained material concept, and simple blue tones create a calm, focused atmosphere. Large windows open up the view to the surrounding nature. Benches along the walls invite visitors to linger and observe. Floor-to-ceiling glazing separates the adventure and sports pool hall visually transparently but acoustically effectively – for concentrated swimming and undisturbed learning.

Well-designed – the sauna area
The spacious sauna area is located on the upper floor and features five different saunas: a sanarium, two Finnish saunas (indoor and outdoor), a relaxation sauna, and a steam bath. An atrium with green walls creates a natural atmosphere, provides daylight, and enhances the overall experience. Rest and fireplace areas, a dining area, and an outdoor area with plunge pools, cold showers, and a sun terrace round out the diverse offerings. There is also another relaxation room in the attic with a view of the surrounding area.

Minimalist, colourful, identity-defining
The design is characterised by a clear, minimalist style. Materials such as exposed concrete and wood have been deliberately avoided both inside and out. Instead, tiles, plastered surfaces and acoustically effective surfaces dominate, which not only create a calm design, but are also particularly easy to clean and maintain. The color scheme focuses on bold shades of blue, green, and yellow, which create a lively atmosphere.

Focus on sustainability and energy efficiency
The Main Bad is impressive not only architecturally, but also ecologically. A comprehensive energy concept ensures resource-efficient and economical operation. 450 photovoltaic modules on the roof generate up to 150,000 kWh of electricity annually. This is supplemented by a modern combined heat and power plant, systems for heat recovery from ventilation and bathing water technology, and the future possibility of using waste heat from the neighboring ice rink—the necessary technical preparations for this have already been implemented. To reduce fresh water consumption, collected rainwater is used for cleaning and watering the outdoor facilities. An integrated rainwater retention system also protects the public sewer system during heavy rainfall. Lighting is provided almost exclusively by energy-efficient LED lights, which minimize maintenance intervals and guarantee a long service life.

Ground floor 1st floor