With only minor structural alterations, a new building envelope and an attractive interior design that makes use of visually appealing materials and a new colour scheme, 4a Architekten have succeeded in substantially enhancing the baths while retaining local inhabitants’ identification with the refurbished building by preserving its high recognition value. Finally, the basic structure of the single-storey sports baths, consisting of two interlocking cubic building structures, was essentially kept intact. The original fabric of the building, first built in the 1970s, was still in good condition, enabling considerable savings in construction costs and time to be made. To be precise: the actual cost of construction was reduced by one third in comparison with the overall cost.

Award:
Exemplary constructions in Sigmaringen 2006-2012

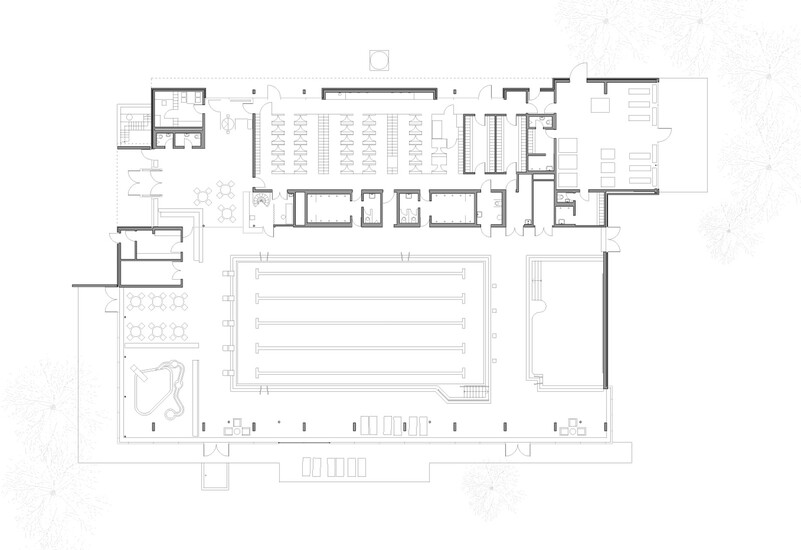
Ground floor