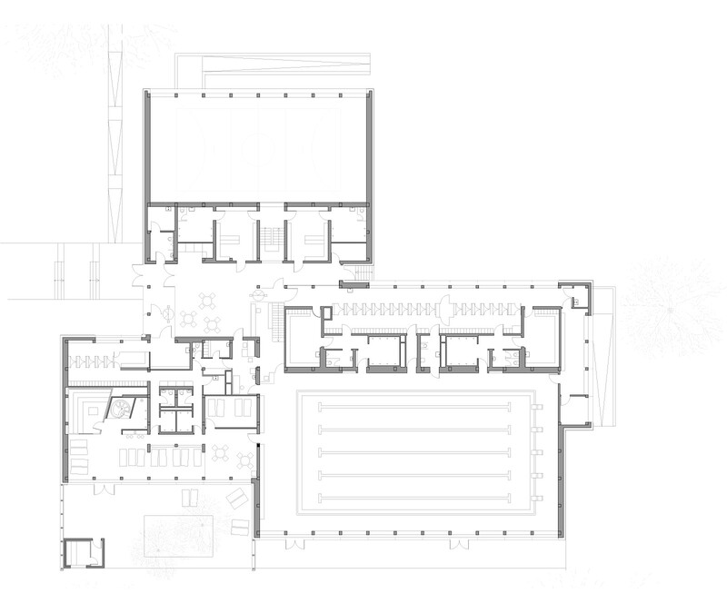
The original building fabric from the 1970s was left largely intact during the redevelopment of the indoor pool and sports hall in Mengen. The existing building was stripped back to its shell and formal interventions were carried out only in the sauna area. The redesign of the building envelope and interior with attractive materials, a new colour scheme and minor structural alterations gives the baths a noticeably more appealing welcoming quality. Greater value was also placed on the maximum use of daylight – extensive façade glazing and interior glass partitions provides great transparency and creates visual axes which interconnect the individual functional areas.

Ground floor