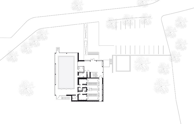
Built in 1972, the Lochenbad baths are located south of Balingen in the district of Weilstetten. The existing indoor pool was comprehensively refurbished. The building was stripped back to its original shell and the floor layout has been reorganized. Enclosed and open areas were created and generous glass openings in the façade offer views outside. A large opening in the swimming hall provides 180-degree views across the surrounding landscape. The ceilings, floors and walls were provided with new surfaces. The outmoded technical equipment has been updated, including heating, pool engineering, water treatment, ventilation and sanitation equipment. The refurbishment was carried out in accordance with the latest energy-saving requirements. The Lochenbad has traditionally been used primarily by clubs and schools. Now it is also open to the public. The redevelopment included a ramp for wheelchair access.

Ground floor