The aim of the redevelopment was to increase the appeal and feel-good factor of the baths and sports halls and to update the technical features of the building, which was built in the 1970s. The redevelopment has been divided into two construction phases. In the first phase, the two sports halls and the bathing hall with adjoining rooms and technical installations were refurbished while the outdoor facilities were partly remodelled. The second phase involves the restructuring and complete redevelopment of the sauna area, comprising a sauna with a view and a sauna garden. To optimise energy efficiency, all the glass façades in the building have been replaced – the external appearance of the sports centre therefore remains virtually unchanged. The aim here was to optimise the sports centre with regard to its functional requirements and atmospheric effect using minimal structural measures. In order to achieve this, new floor plans were drawn up and the layout of routes in the foyer and adjoining rooms was optimised. The contemporary material and colour design lends the interior an identity of its own and ensures that the whole building gives a pleasant sense of space. The entire building technology has also been updated – only parts of the bathing water equipment have been retained.

Awards
Piscina & Wellness Award 2017
Pool Vision Award 2016, 1st prize "renovated pools"
Wood Wool Award 2015

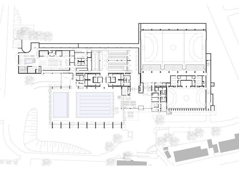
Ground floor