Die Erweiterung an die bestehende Eisschnelllaufhalle fügt sich als dreigeschossiger Baukörper zwischen dem Spitzensportlichen Trainingszentrum und dem Trainingshallenkomplex selbstverständlich ein. Durch die abstrahierte L-Form des Gebäudes entsteht eine einladende Geste für einen großzügigen Vorplatz, der als Treffpunkt und Versammlungsort dient. Markanter Blickfang ist eine vorgehängte, transparente Textilfassade in einem eisigen Blauton, welche die Obergeschosse kleidet. Sie verleiht dem Gebäude nicht nur eine gewisse Leichtigkeit und Dynamik, sondern schafft von außen ein identitätsstiftendes Erscheinungsbild, das der repräsentativen Adresse für den Eissport weithin Sichtbarkeit verleiht.

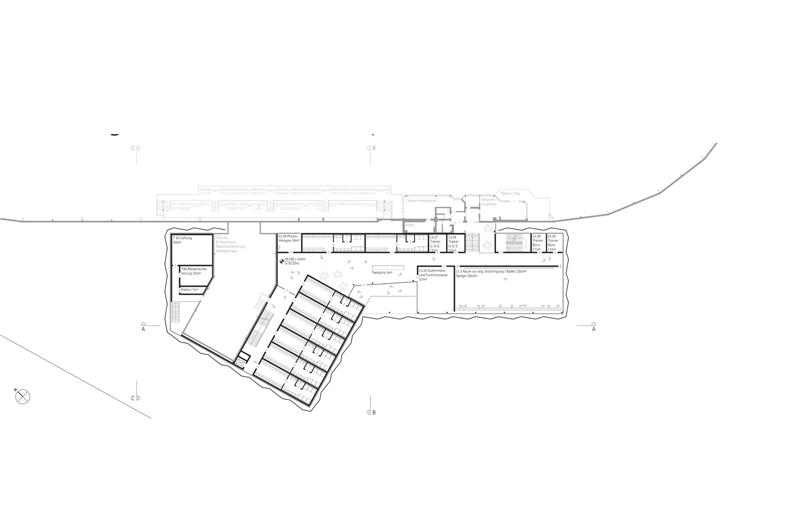
Die prägnante Textilfassade umhüllt sowohl den Neubau als auch alle Bestandsräume wie Notstromanlage, Wasseraufbereitung, Osmoseanlage usw. im Erdgeschoss und 1. Obergeschoss. Um klare Abläufe zu gewährleisten, wurden der bestehende Eingangsbereich sowie die Arzt- und Anschnallräume neu organisiert und erweitert. Im Erdgeschoss entsteht eine neue, großzügige Eingangshalle, die beim Betreten den Blick in die Eisschnelllaufhalle freigibt. Sie dient als zentrale Anlaufstelle und Orientierungspunkt für alle Bereiche des Gebäudes. Direkt an das Foyer angeschlossen sind die öffentlichen WCs, der Kassenraum, der Schlittschuhverleih und der Erste-Hilfe Raum. Zudem befindet sich hier über eine Drehkreuzanlage der Zugang zum Tunnel und zur kleinen Tribüne. Im Südosten der Eingangshalle liegen die Vereins- und Verbandsräume, die entweder über die Eingangshalle oder das neue Fluchttreppenhaus zugänglich sind. Gleiches gilt für die Aufsicht, deren Bereich hinter den Vereinen liegt. Im Nordwesten der Eingangshalle grenzen der Sportlerzugang zur Halle, die Anschnallräume, die Arzträume, die Werkstatt, der Technikbereich, der Mitarbeiterbereich und der Aufgang zu den Obergeschossen an den Eingangsbereich an. Sportler und Mitarbeiter haben die Möglichkeit, über einen eigenen Eingang in ihre Bereiche zu gelangen, sind aber auch an die Eingangshalle angeschlossen. Somit können alle Bereiche von der Eingangshalle aus erschlossen werden, bieten aber auch ihre eigenen Zugänge. Damit ist gewährleistet, dass sich die Wege der einzelnen Nutzergruppen sowohl im Alltag als auch an Wettkampftagen nur an den notwendigen Stellen kreuzen. Im 1. Obergeschoss befindet sich die Bestandstechnik und auch neue Technikräume, die über eine Treppe aus dem Erdgeschoss mit separatem Zugang erschlossen werden können. An die Bestandstechnik grenzen im Südosten die Umkleide- und Sanitärbereiche der Sportler, der Physioraum, der Aufenthaltsraum mit Teeküche, der Ballettraum und die Trainerräume an. Dieser Bereich wird über die zentrale Treppe und den Aufzug erschlossen und bietet im Flurbereich bei der Teeküche Aufenthaltsflächen und einen Balkon. Die Trainer können über das zweite Treppenhaus schnell zu ihren Räumen gelangen. Im 2. Obergeschoss sind der Laufbereich mit kleinem Außenbereich, der Ergometrieraum, der Kraftraum und das Lager angeordnet, die alle zentral vom Treppenhaus und somit auch schnell von den Umkleiden aus erreichbar sind.

Wirtschaftlichkeit und Energieeffizienz
Ziel des Nachhaltigkeitskonzepts ist die Optimierung der Aufenthaltsqualität unter einer robusten, kombinierten architektonischen und haustechnischen Lösung; gleichzeitig soll der Ressourcenverbrauch minimiert werden. Der Nutzer steht im Zentrum der Betrachtung. Natürliche Vorgänge mit unterstützender Technik schaffen eine angenehme Aufenthaltsqualität, wobei der Nutzer stets die Möglichkeit des Eingriffs hat. In dem architektonischen Konzept kommen passive Maßnahmen zum Einsatz, unterstützt durch modernste Technologie – wo notwendig und sinnvoll. Das Lüftungskonzept sieht eine optimierte natürliche Lüftung vor. In die permanent genutzten Bereiche wird Frischluft über eine Nachströmöffnung integriert in der Fassade eingebracht. Kamine saugen die Luft durch den thermischen Auftrieb ab. Über eine motorische Klappe kann der Luftvolumenstrom bedarfsgeregelt werden. Bei diesem Konzept bleibt die Decke frei von Kanälen. Die Zuluft wird im Winter durch vorbeiströmen an Heizkörpern vorerwärmt, um Zugerscheinungen zu vermeiden. Technikflächen für Lüftungsgeräte werden dadurch minimiert. Das System ermöglicht zudem die Nachtluftspülung ohne Strombedarf und ist einbruchssicher. In allen Bereichen kann zudem manuell über Fenster in der Fassade gelüftet werden. Die Basis des sommerlichen Komforts bildet der starre, textile Sonnenschutz, mit Sonnenschutzglas und der thermischen Speichermasse von Lehmplatten unterhalb der Decke. Der Sichtbezug nach Außen durch den Sonnenschutz ist durch die Materialauswahl und den Transparenzgrad gegeben. Die thermische Masse wird nachts primär über Nachtluftspülung entladen. In Spitzenkühlzeiten werden in den Sportbereichen die Deckenlüfter, in den Bürobereichen die mit Bauteilaktivierung versehenen Lehmplatten und im Foyer die Fußbodenkühlung aktiviert. Zur Deckung des Kältebedarfs wird ein geothermisches System empfohlen, im Verbund mit reversibler Wärmepumpentechnik. Dieses System bietet in der Regel ein hohes Direktkühlpotential im Verbund mit der Bauteilaktivierung. Der restliche Wärmebedarf wird konventionell über Fernwärme/Brennwertkessel abgedeckt. Auf dem Dach werden Photovoltaikmodule vorgesehen. Fazit: Das Konzept zur Optimierung der Nachhaltigkeit der baulichen Maßnahme ist „maßgeschneidert“ auf die Anforderungen angepasst und integraler Bestandteil des architektonischen Konzepts. Gebäude als auch das integrierte Energiekonzept reagieren auf die örtlichen Randbedingungen als auch die Anforderungen der Nutzung und unterstützten damit eine spezifische Identität. Der Verbrauch an Ressourcen wird signifikant reduziert und zugleich ein Maximum an Nutzerkomfort erzielt.