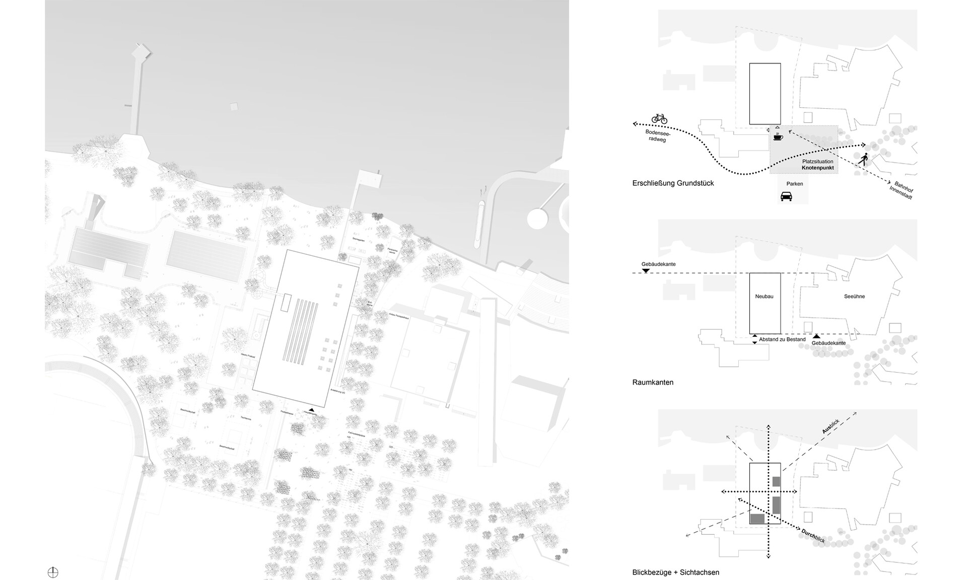
The city of Bregenz is planning the construction of a public indoor swimming pool next to the existing outdoor swimming pool. The new indoor swimming pool is to be planned as a tightly organized sports and leisure pool with a high quality of stay. The well-organized floor plan allows for a compact, two-storey building which, despite a comprehensive spatial program, does not reach the building limits and blends well into the urban environment. This ensures the greatest possible distance to the existing indoor swimming pool, which will continue to be operated until the new building is completed. A maximum distance is also maintained between the Festspielhaus and the new indoor swimming pool, which allows important views of the lake.

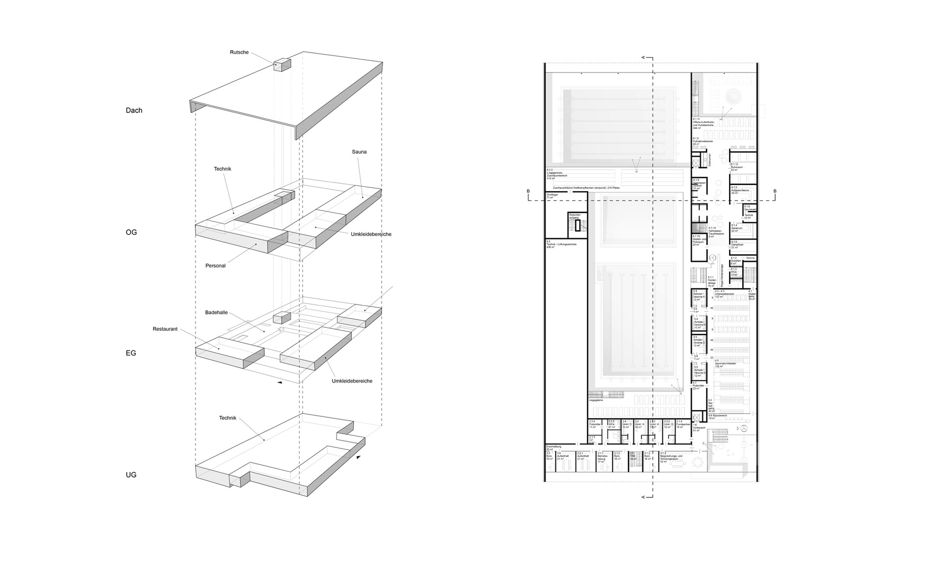
The indoor swimming pool spans between the lake shore and the entrance square in a north-south direction, opening up both to the outdoor swimming pool and the lake panorama. From the entrance plaza, important views into and through the building are given. The central main entrance with a large square in front - as an extended foyer and entrance - locates the new building between the stadium and the festival grounds as an independent address. The U-shaped upper floor divides the bathing hall in height. Areas are created which have different room heights according to their use. The changing room area extends over both floors. Collective changing rooms and cloakrooms for sauna guests are located on the upper floor - this is also where the main access to the sauna is located. A staircase at the end of the changing room connects the two changing areas internally. The spectator area for the sports pool is arranged on a gallery, which can also be accessed directly from the foyer. If this area is not used by spectators, it can be used as a lounging gallery with an excellent view of the lake. The course pool is also spatially separated from the rest of the pool program, so that a trouble-free operation next to each other is easily possible. The restaurant is located at the interface between foyer, bathing hall and outdoor pool.