A temporary, modular and removable building - this innovative planning concept has won over the structural engineering department of the state capital Stuttgart. These qualities and the almost complete prefabrication in the factory make it possible to construct, dismantle, relocate and reassemble the pool at various locations in the Stuttgart city area - and all in a fast time. The background to this requirement is to provide citizens with water areas while swimming pools are being renovated or newly built.

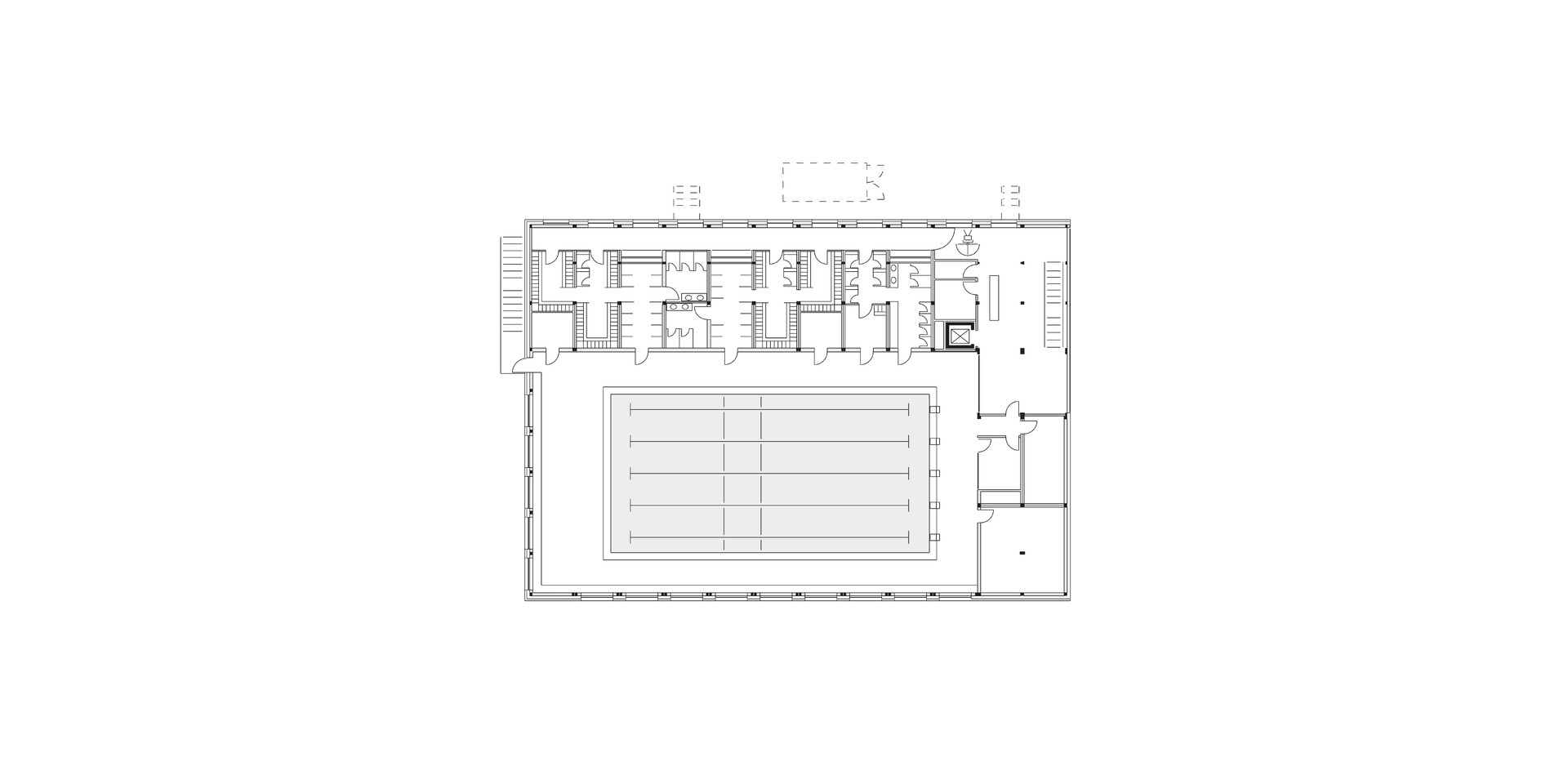
The pool, built using modular timber construction, is fitted with a 25-metre pool. The high-quality and sustainable construction method with a high degree of prefabrication enables short construction times and offers an alternative to traditional construction methods. The Zuffenhausen district of Stuttgart was chosen as the first location for the modular swimming pool. Completion is planned for mid-2026. A few years later, the modular pool will be built in Möhringen and finally in Untertürkheim.

A report was broadcast on SWR television at the start of construction (starting at 9:43):
www.ardmediathek.de

You can see the current construction progress here:
bautvplus.de/zeitraffer

And this is what the swimming pool will look like when it is finished:

Ernst Ulrich Tillmanns: "For us as architects specialised in swimming pool constructions, it is an exciting task to transfer the design, functional and technical requirements of a swimming pool to a modular construction concept. We see great potential in integrating aspects such as prefabrication and the circular economy into swimming pool constructions."